Bed icon  4  Bath icon  3

4 bed Semi-Detached Sold Subject to Contract
Broomgrove Gardens, Edgware, Middlesex, HA8
£725,000

  • arrow icon Fitted Kitchen
  • arrow icon En suite
  • arrow icon Double glazing
  • arrow icon Close to public transport
  • arrow icon Chain free
  • arrow icon off street parking
  • arrow icon central heating
  • arrow icon Garden
  • arrow icon Parking
  • arrow icon Driveway
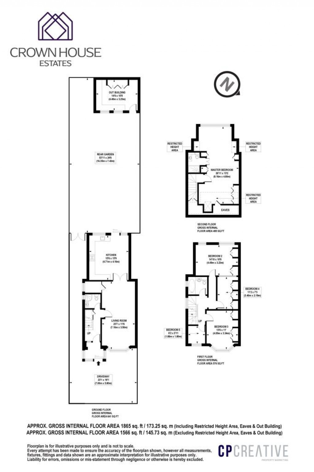
Crown House Estates are pleased to present this Extended and Well Maintained Large Four/Five Bedroom Semi-Detached Family Home in Edgware situated in an excellent location within a brief walk of the local schools, amenities, and Tube Stations.

The ground floor of this property comprises a large front reception room which connects to an extended new modern fitted kitchen/ diner with stone worktops and integrated Siemens appliances which leads you into the private rear Garden which includes an outbuilding to the rear that can be used a gym/workspace.

The first floor of this property boasts two spacious double bedrooms with fitted wardrobes, a third/fourth bedroom, and a main family bathroom.
On the second floor, you will find a large bedroom with a fitted wardrobe and ensuite.

Further benefits of this property include a driveway that offers off-street parking for several cars, a large private rear garden, chain-free status and proximity transport links, and many sought-after schools such as Krishna Avanti Primary School

agent

For further details on this property please call us on:
020 3355 2261

Arrange Viewing
Floorplans For Broomgrove Gardens, Edgware, Middlesex, HA8
X

X

Viewing Request